ReRender

Complexo de Apartamentos,
Alta Tecnologia Expressiva
Original
Source Image
Enviado
Gerada(1088x768)
source
1.23%
Result Images
Result Images
Result Images

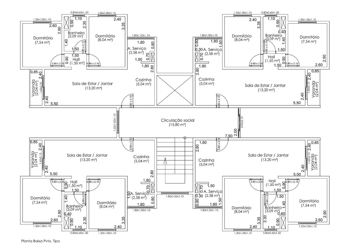
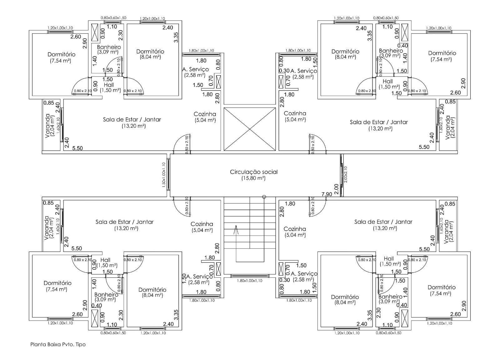
An incredibly lifelike, richly detailed, photorealistic aerial shot of an apartment complex floorplan, captured with a high-resolution digital camera, emphasizing crisp lines and precise architectural details. The scene is illuminated by bright, even studio lighting, creating a clean and functional atmosphere, typical of expressively high-tech architectural visualizations. The composition showcases a symmetrical layout of identical units, with each apartment featuring mirrored bedrooms, bathrooms, living/dining areas, kitchens, and balconies. The floorplan is rendered in a monochromatic palette of black lines on a white background, with subtle gray shading indicating some structural elements. Every dimension is meticulously labeled, offering a hyper-realistic sense of scale and practicality, as if zooming in on a complex blueprint with all its intricate planning visible. The perspective is that of looking directly down into a miniature, perfectly constructed model of the building, revealing the spatial relationships and flow between each distinct room within the organized structure of the apartment complex.


Use the extensionSketchUp
Follow usInstagramYouTubeLinkedIn
Join the discussionReddit