ReRender

Armazém,
Eco-futurismo
Original
Source Image
Enviado
Gerada(1304x768)
source
1.17%
Result Images
Result Images
Result Images

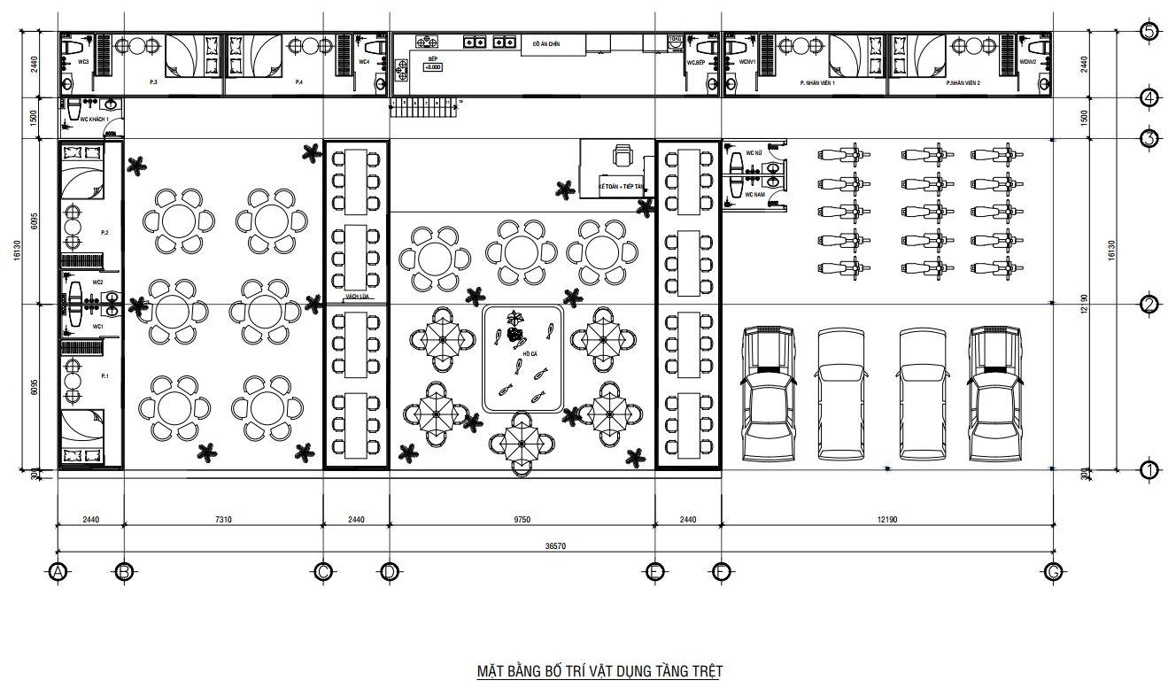
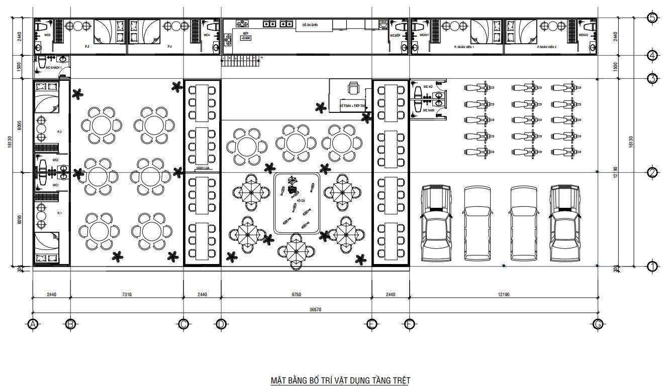
An incredibly lifelike, richly detailed, photorealistic aerial shot of a bustling warehouse floor, reimagined with an "eco-futurism" aesthetic. The scene is illuminated by bright, clear midday summer sun streaming in through expansive, glass-paned skylights, creating a sense of airy openness and highlighting the clean, polished concrete floor. Arranged meticulously are numerous circular dining tables with plush, organically shaped seating, interspersed with modular rectangular tables and chairs, suggesting a flexible, multi-use space. In the center, a tranquil koi pond, complete with stylized fish, acts as a natural focal point, surrounded by more intimate, four-seated dining arrangements. Black, stylized floral and star-shaped planters are strategically placed, adding organic touches to the otherwise industrial setting. Further into the space, a designated motorcycle parking area displays rows of sleek, futuristic two-wheeled vehicles, reflecting a blend of practicality and advanced design. Adjacent to this, a line of modern, eco-friendly vehicles are parked – possibly electric or hydrogen-powered cars and vans – hinting at a sustainable transportation hub. The distant background reveals clean, minimalist washroom facilities and what appears to be a compact, highly efficient kitchen area, all designed with smooth, reflective surfaces and integrated technology, contributing to the overall eco-futuristic ambiance. Captured with a wide-angle lens, emphasizing the vastness of the floor and the intricate organization of the space, the photograph conveys a sense of order, innovation, and harmonious integration of natural elements within a functional, forward-thinking environment.


Use the extensionSketchUp
Follow usInstagramYouTubeLinkedIn
Join the discussionReddit