ReRender

Loja de Varejo,
Internacional Elegante
Original
Source Image
Enviado
Gerada(768x1376)
source
0.35%
Result Images
Result Images
Result Images

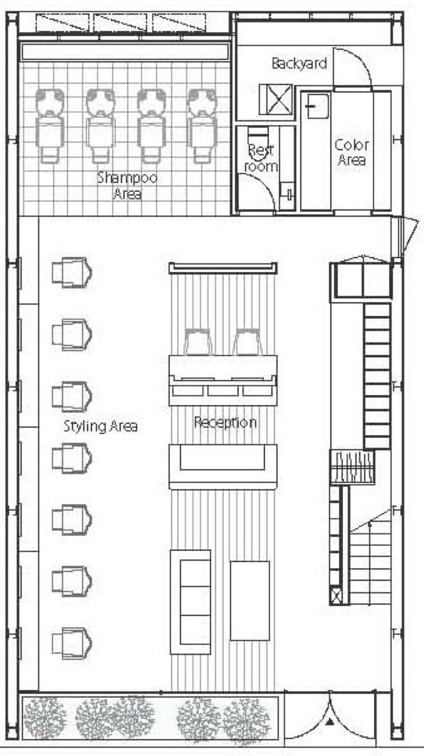
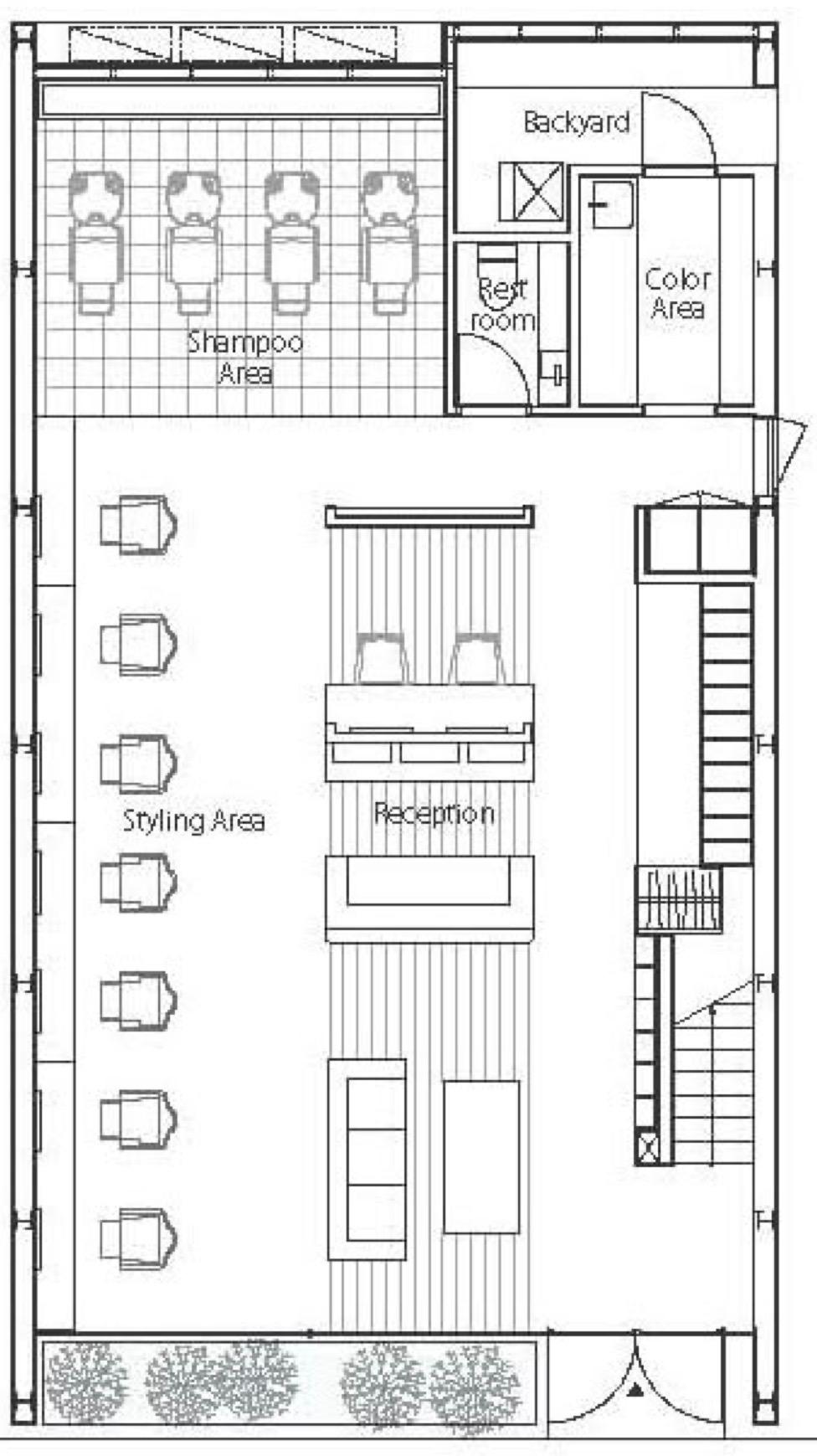
An incredibly lifelike, richly detailed, photorealistic top-down floorplan photo of a sleek, international barbershop set in a bustling cityscape. The scene is illuminated by crisp midday summer light, creating a bright and airy atmosphere suitable for a high-end retail store. Captured with a wide-angle lens, the photograph emphasizes the clean lines and organized layout of the space, with polished steel accents subtly visible throughout. In the "Shampoo Area" at the rear, four modern styling chairs with integrated headrests are neatly arranged on a checkered tile floor, awaiting clients. Adjacent to this is a compact "Rest Room," while further back, the "Color Area" sits near a small "Backyard" space, hinting at an urban oasis. The main salon floor features a prominent "Reception" area with a sleek desk and comfortable waiting area seating, flanked by the "Styling Area" with a row of six identical styling chairs positioned along one wall. Vertical wood paneling creates a sense of flow and privacy, while a grand staircase, also featuring steel elements, leads to an upper level, suggesting expansive services or private treatment rooms. The exterior, visible at the bottom, is lined with neatly manicured trees, offering a touch of nature against the urban backdrop.


Use the extensionSketchUp
Follow usInstagramYouTubeLinkedIn
Join the discussionReddit