ReRender

Museu,
Internacional Elegante
Original
Source Image
Enviado
Gerada(1296x768)
source
3.60%
Result Images
Result Images
Result Images
Mostrar mais

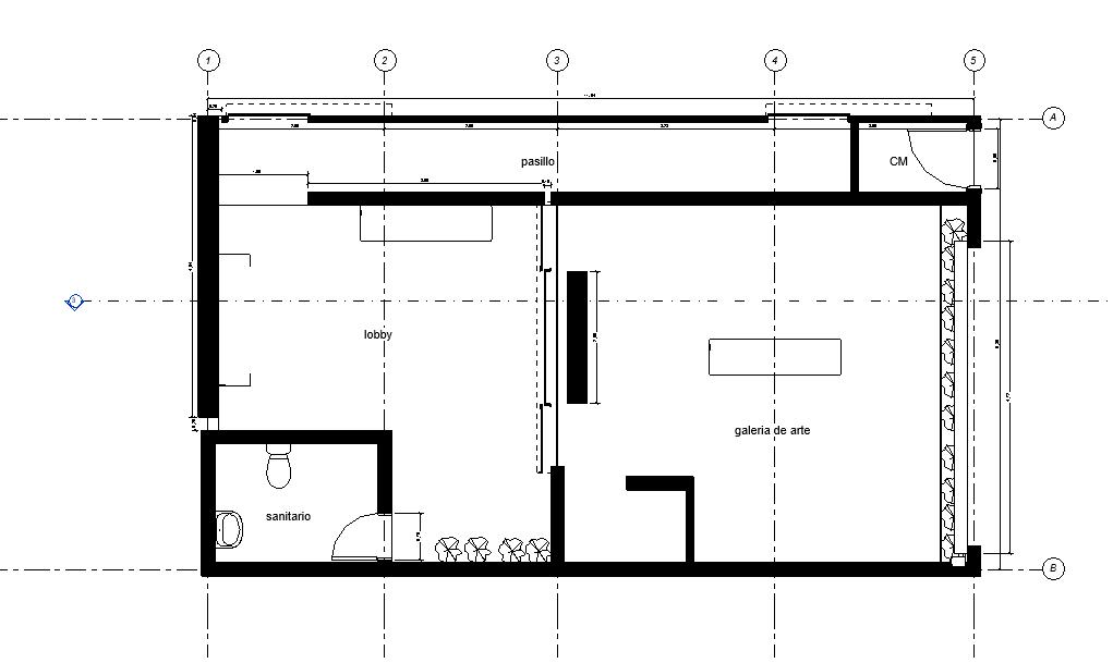
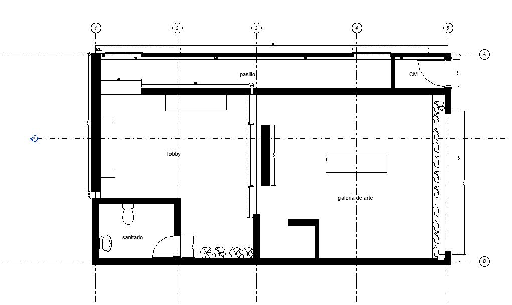
An incredibly lifelike, richly detailed, photorealistic bird’s-eye view of a sleek international museum interior, meticulously mapped out. The scene is illuminated by an even, bright midday light, suggesting a clear spring day, though a subtle dusting of snow visible just outside the large glass facade hints at the lingering winter chill. The composition showcases a distinct separation of spaces: a "lobby" area on the left features a floor of small pebbles or gravel, giving it a natural, textured feel. Adjacent is a "sanitario" (restroom) with a floor designed for comfort and relaxation, perhaps a soft, muted tile or a matte finish that conveys tranquility. Moving to the right, a "pasillo" (hallway) reveals a sophisticated flooring of wooden planks, adding warmth and a polished look. This hallway leads into the "galeria de arte" (art gallery), its floor a smooth, polished concrete that lends a modern, industrial-chic aesthetic, ideal for showcasing art. The walls are stark white, creating a clean backdrop for unseen exhibits, with thick black lines delineating the architectural structure like a perfect blueprint brought to life. The overall atmosphere is one of quiet, refined elegance and functional design, capturing a moment of calm within a larger urban, snowy cityscape.


Use the extensionSketchUp
Follow usInstagramYouTubeLinkedIn
Join the discussionReddit