ReRender

Armazém,
Eco-futurismo
Original
Source Image
Enviado
Gerada(1680x768)
source
4.70%
Result Images
Result Images
Result Images

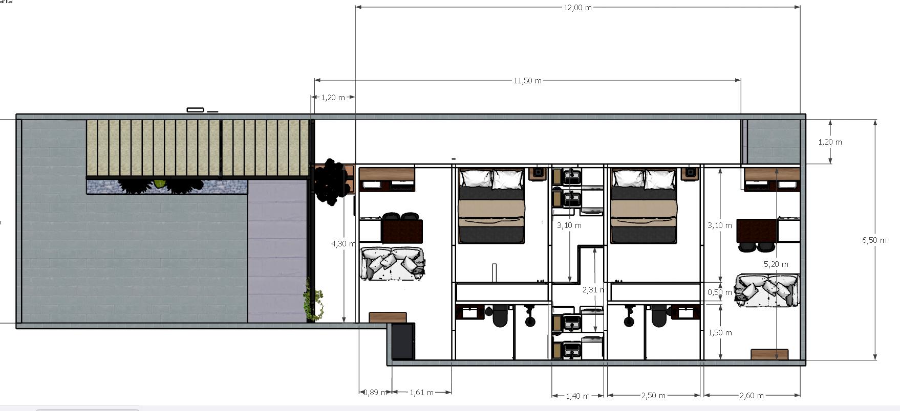
An incredibly lifelike, richly detailed, photorealistic floorplan photo of a modular warehouse interior rendered in an eco-futuristic style. The scene is illuminated by bright, diffused overhead lighting, creating a clean and functional atmosphere. Captured with a high-resolution, wide-angle lens, emphasizing the minimalist, geometric design, the photograph showcases a space divided into compact living or working pods. Each pod features efficiently arranged furniture: a neatly made bed with crisp white linens, a sleek desk with integrated shelving, and a small seating area with a plush sofa. The walls are a light, neutral tone, contrasting with the dark wood accents and modular shelving units. Beyond the interior, glimpses of an exterior patio area are visible, featuring a textured gray brick-like wall and a neatly arranged vertical garden, suggesting a harmonious blend of urban living and natural elements. The composition is precise, with clear delineation of spaces and a sense of efficient, almost clinical order.


Use the extensionSketchUp
Follow usInstagramYouTubeLinkedIn
Join the discussionReddit